Bytový dům Duškova

Bytový dům Duškova

Základní parametry

LokalitaDuškova 20, Praha 5 Termín dokončeníleden 2009 Prodáno100%
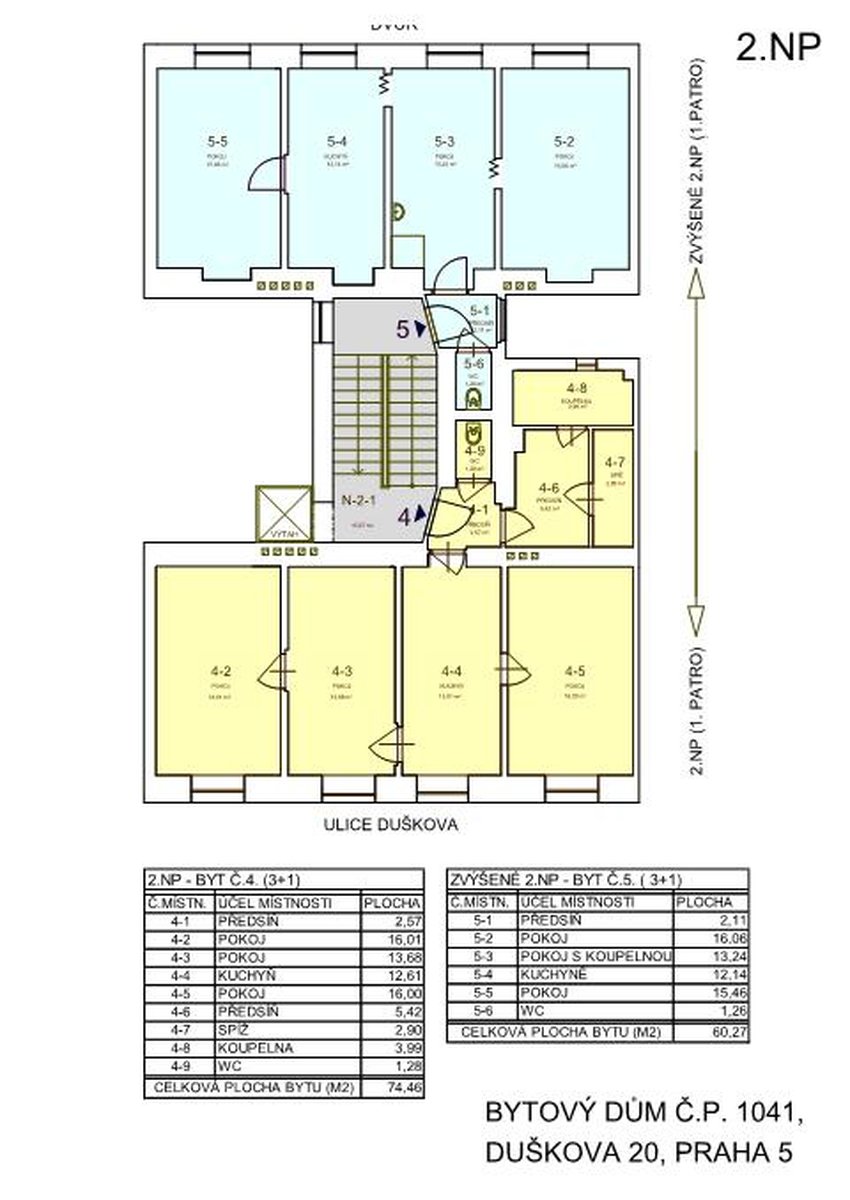
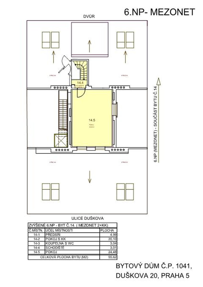
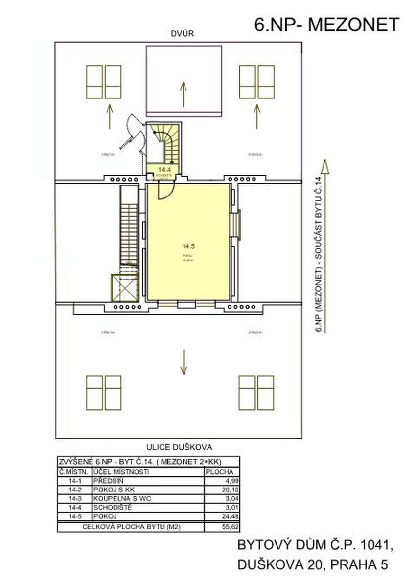
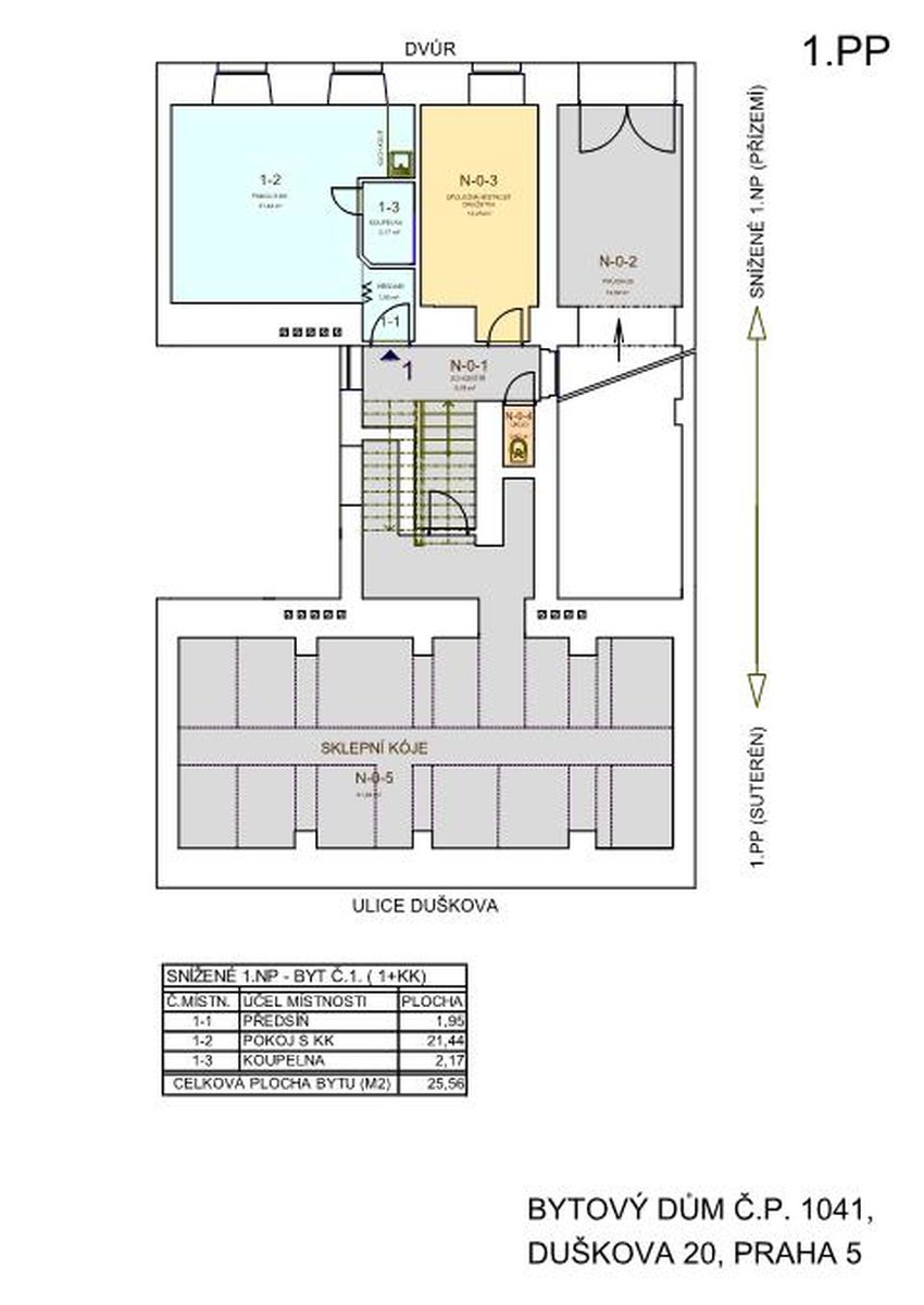
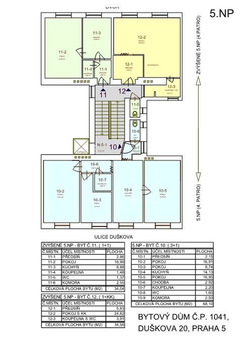
V domě proběhla rekonstrukce a půdní vestavba bytových jednotek. Po dokončení prací je v objektu celkem 15 bytových jednotek.

Součástí prací, které již v objektu proběhly je i vybudování výtahu. Ten byl uveden do provozu v průběhu měsíce března 2008. Dále byla také provedena rekonstrukce střechy.

Dům je 7-mi podlažní. Podlaží v uličním traktu jsou oproti podlažím v traktu dvorním výškově posunuty o půl patra. Na severní straně domu se nachází dvorek, který je přístupný průchodem v domě.

V průběhu roku 2008 byly dále provedeny tyto rekonstrukční práce : - výměna vodovodních stoupaček vč. montáže vodoměrů do všech bytových jednotek - výměna starých kastlových oken za dřevěná EURO okna - oprava fasády do ulice i do dvora vč. zateplení některých částí

Každý z bytů má samostatnou přípojku plynu a ústřední vytápění. Dále má vlastní přípojku elektrické energie a je přiveden vodovod a kanalizace. Objekt má jeden společný vodoměr. Do současnosti docházelo k výpočtu spotřeby vody dle množství osob bydlících v jednotlivých bytech. V průběhu roku 2008 byly osazeny do všech bytů podružné vodoměry.