Pavlovské sklípky

Pavlovské sklípky

Základní parametry

LokalitaPavlov Termín dokončeníleden 2016 Prodáno100%
Obec Pavlov

Vinařská obec Pavlov je známá a vyhledávaná pro svoji vinařskou tradici, památky, významná archeologická naleziště, polohu v překrásné přírodě a v neposlední řadě se nachází na břehu vodní nádrže Nové Mlýny, kterou tvoří kaskáda tří vodních nádrží, z nichž třetí, přiléhající k obci Pavlov, je nejvýznamnější centrum veškerých vodních sportů na Jižní Moravě. Místní přiléhající Yacht Club Dyje je udržovaný areál určený pro vodní sporty - jachting, vindsurfing a v posledních letech dynamicky se rozvíjející kitesurfing. V místním klubu je také stanice vyhledávané lodní dopravy, která nabízí výletníkům možnost okružní plavby kolem vodní nádrže na trase YC Pavlov – Kemp MARS Šakvice – Strachotín – Kemp Dolní Věstonice.Kromě běžné turistiky je oblast vyhledávanou pro své cykloturistické stezky, kde si přijdou na své, jak nároční cyklisté, tak rodiny s dětmi. Toto vše přivede do obce každým rokem tisíce turistů nejen z celé české republiky, ale i zahraničí. 
Lokalita

Obec s cca 570 obyvateli je vinařskou a rekreační obcí s dobrou technickou a občanskou vybaveností. V obci je mateřská škola, restaurační zařízení, řada penzionů a jiných ubytovacích zařízení, obchod se smíšeným zbožím, pošta i lékař. V Pavlově je provedena plynofikace, je zde veřejný vodovod a kanalizace (dešťová i splašková).

Doprava MHD

Obec Pavlov leží v oblasti s dobrou návazností z jedné strany na hlavní silniční tah Brno - Mikulov – Vídeň a strany druhé dálnice Brno – Bratislava, přesto v klidné části Chráněné krajinné oblasti Pálava.
 
Pavlovské sklípky

Projekt pěti rodinných domů s podzemními sklípky je situován v horní části obce Pavlov na boční ulici směrem od ul. Klentnická nad hotelem Pavlov v zastavěném území obce Pavlov, v části zvané Slunný vrch.
 
Projekt

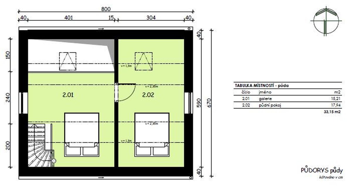
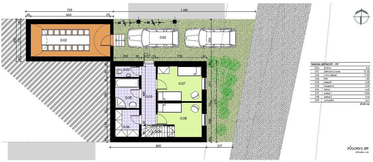
Na pozemcích bude vybudováno pět na sebe navazujících řadových podsklepených rodinných domů s částečným podkrovím pod sedlovou střechou. U každého z rodinných domů se bude nacházet přístřešek pro osobní automobil, kola apod. Střecha přístřešku bude zároveň sloužit jako terasa přístupná z úrovně 1NP s výhledem na vodní nádrž. Každý z domů bude mít vlastní zemní vinný sklep, přístupný z prostoru přístřešku. Za domem se bude nacházet oplocená zahrada, ze které bude výhled na opačnou stranu – vrch se zříceninou hradu Děvičky.